苗族“交襟左衽衣”结构的节俭设计方法
引言
苗族支系众多,是一个只有语言没有文字的民族,古老的服饰银装锦绣,服装的缘饰刺绣精美,记录着氏族和主人一生的信息,他们把精神情感及生活环境在服饰上不断积累扩充,传达着纪念祖先、记录历史、争战功绩、婚姻状况等,形成属于自己支系独特的象征符号,穿在身上犹如一部无字天书,展示了超越文字的史料价值。因此他们恪守“服饰不同不通婚”的习俗。然而,在服装结构上却保持着整齐划一的“千户苗寨交襟装”的传统[1,2]。
在结构上呈交襟左衽,是苗族服饰中最古老和最具代表性的结构,其形制,它从贯首衣演变而来(海南苗族就保持这种形制),是苗族服饰的活化石。此标本来源于贵州凯里私人博物馆传世品,标本地为贵州省凯里市雷山县,根据样本质地、做工和装饰图案等因素鉴定为清代时期女子节日女服。学术界又根据其地理位置、纹样特征、款式类型等因素称该样式为西江式。通过对典型标本结构作系统的研究,发现苗服结构缺少结构实验的数据考证,获其标本研究,成为破解苗族“交襟左衽衣”结构设计方法的关键。因此对标本的主结构、衬里结构和饰边结构进行数据采集、测绘、结构图复原及排料实验并与文献考证进行互证。测量数据和结构图复原显示,“布幅决定结构设计”[4]的敬物理念是苗族“交襟左衽衣”结构的主要设计方法,为后人提供了全新的视角和方法。
一、交襟左衽衣标本测绘与复原
(一)交襟左衽衣主结构测绘与复原
交襟左衽是苗族盛装“雄衣”典型形制,苗语称“欧毕”,意即雄性衣,在结构上男女没有区别,[3,4]主要在重大节日、走亲和婚嫁丧娶时穿着。雄衣穿着时交领左衽侧带系结,主要特点是后衣领低矮而向后坠,类似日本的和服领。雄衣有衬里,衣身整体结构、图案工整,保持左右、前后对称,两边呈四方袖,双襟、衣领、肩部、下摆和开叉均有锦绣缘边,饰有红、绿、黑相间的鸟、花卉、龙、蝴蝶等纹样,采用绉绣、锁绣、辫绣等刺绣工艺(如图1)。
标本面料为自织自染的青黑色平纹布,因尚黑也得名“黑苗”[5,6],这种尚黑的服饰还跟西江的自然环境有关,有利于隐蔽性的狩猎活动。
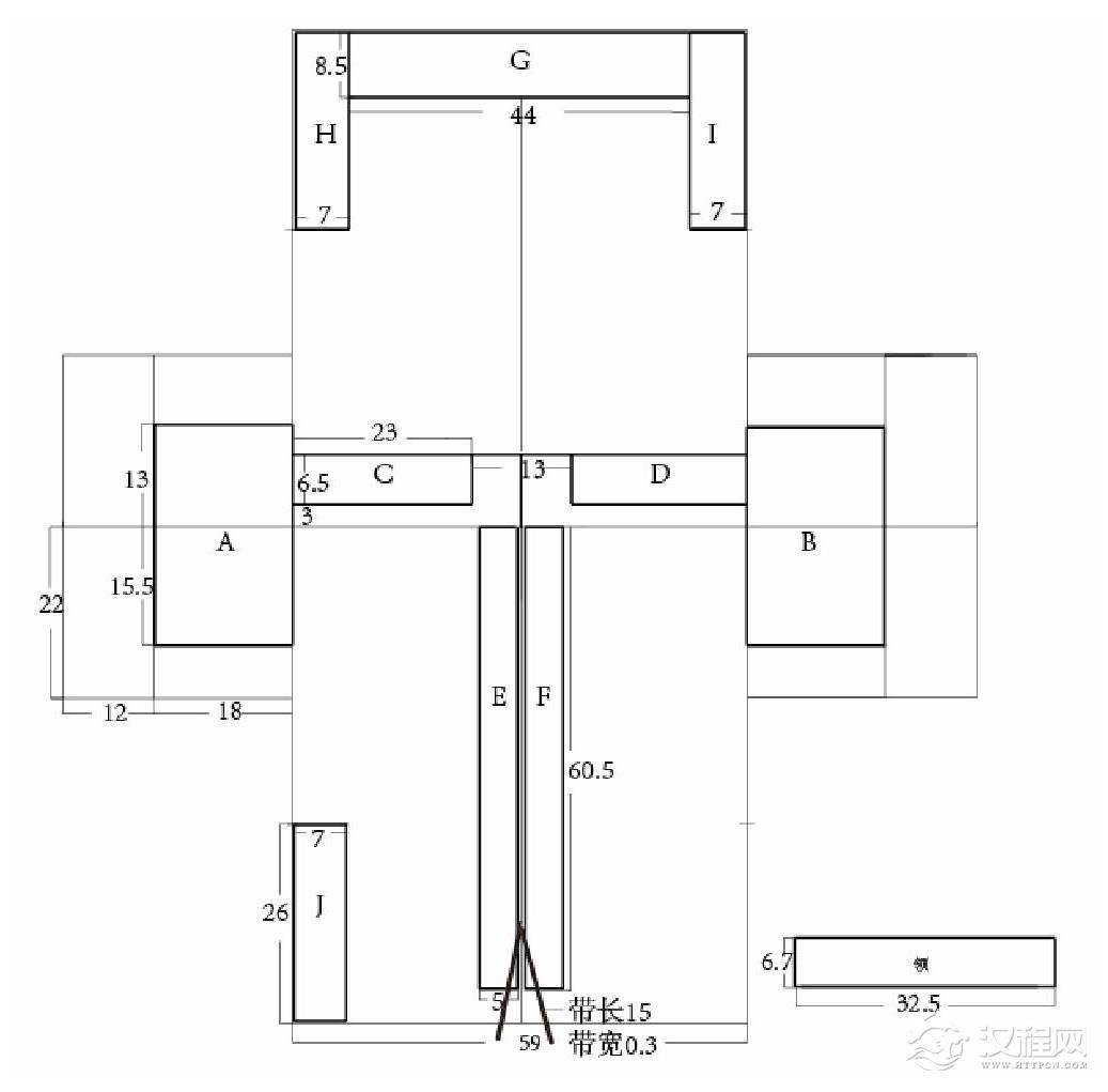
标本主结构由衣身、袖子和领子3部分组成,被分割成A、B、C、D、E、F、G、H、I、J10片,再加入单独的领子共11片。领子面料与衣身面料一致,领子长31cm,宽7cm,领子两端均为布边故领宽即为布幅宽。衣身前后中破缝,前后身连裁,左右身AB片接缝处均为布边,故各为一个布幅。袖子无肩缝,两个接袖,由C、D、E、F、G、H,6片组成,E、F、G、H为衣身面料,面布的纱向跟衣身的纱向相反,C、D片为单独绣片,左右接袖的4块面布E、F、G、H相加也是一个布幅。左右袖口I、J片均为半个幅宽。测量数据和结构图复原显示标本结构分割设计都与布料的幅宽密不可分,是交襟左衽衣“零消耗”结构设计的直接实物证据(如表1、图2)。
表1雄衣标本主结构测量数据

图1雄衣标本与外观图(私人收藏)

图2雄衣标本结构

图4 雄衣标本饰边分局的复原
(二)衬里结构测绘与复原
标本衬里面料为自织自染的靛蓝色平纹布,衬里为两种颜色面料,I、J片和主面料一致为青黑色,I、J与袖片连裁,折进2cm,相当连裁贴边,故整件服装没有袖口缝,这种设计的考虑是使袖口尽可能不暴露衬里,从而达到节俭与美观的统一。衬里L、M、K、N四个部分为靛蓝布呈四个布幅。从衬里结构测绘与复原情况看,完全与主结构保持一致,且衣身L、M片与接袖K、N片宽度相等约为31cm。可见衬里是用了四个布幅完成的结构设计。复原排料图与主结构相同亦呈现“零消耗”(如图3)。

图3雄衣标本衬里结构
(三)饰边结构测绘与复原
“雄衣”的人文信息主要表现在饰边图案中。自远古至明清,苗族氏族部落基本上都在战争与不断迁徙中度过,为了显示和保持不屈的精神,成为记录战绩和部族历史的徽帜,战服慢慢演变成雄衣,至今保持着氏族成员诸多战服的痕迹。饰边的分布也依据“布幅决定结构形态”的思想进行设计。
作为盛装雄衣的饰边并非装饰,它主要有两种功用,一是表达氏族的图腾标志;一是保护和延长服装寿命的作用,亦继承着节俭的传统意识。因此,饰边主要分布在肩部、袖口、开衩、下摆、衣领等处,这些地方往往比较容易磨损,他们借助刺绣装饰把服装进一步加固,磨损不能使用时还可以更换,提升服装的使用价值及储藏时间,从饰边的基布测绘数据看它们也保持着单位布幅的分割(如表2)。绣片的绣法主要采用绉绣和辫绣[7],即用编好的线堆叠、缠绕在基布上,其效果浑厚粗犷、沉重结实,如同浮雕一般。袖口和饰边刺绣都是没有破缝的,在未制成成衣的状态下,饰边与服装都是单独制作的,采用先绣后缝的方法,在缝制服装前,所有的绣片均已绣磬。这样无论是衣片还是饰边出现损坏,将它们拆洗后重新用到完好的雄衣上。因此,形成苗族服饰重工艺轻裁剪的特点,一件衣服制作的时间大部分用在绣片上。在裁剪上并不需要花费太多的时间而必须节省。基于“物尽其用”的考虑,最有效的设计方法就是依据布幅自然形成服装的结构,结构决定着饰边的布局[8]。饰边同衣身结构一样保持着左右对称,唯一区别在于前身右开衩缺一饰边,这是因为穿着时为左衽交领,被衣襟遮住而省略(如图4)。
(四)标本面料排料实验
在雄衣排料实验中发现,交襟左衽衣属于有织有缝的“缝合型”。布幅决定结构设计主要采用“规格化”和“整幅使用”方法。“规格化”采用规则的矩形,常常两两相对,可以任意调换而不影响缝制,这种基于节俭的“规格化”设计方法为它们的反复使用、延长寿命提供了条件。一件完整的雄衣仅由4至6片布构成,制作的过程中不产生任何的边角布料,真正达到裁剪零消耗。分割时也按照整幅布料等比剪裁,如衣身两幅,接袖4块面布就是一幅宽,不管纱线的方向;袖口各为半个幅宽,这就出现了“四拼一”“二拼一”的巧妙计算。它充分体现着最朴素而直接的天人合一的自然观,所有结构均因节俭和物质崇拜而催生,这种设计是以人适应面料的幅宽和依据面料的自然特性进行经营而布局。

表2雄衣标本饰边结构测量数据

图5青黑色土布排料图

图6靛蓝色土布排料图
整件标本共有2种面料,青黑色平纹布及靛蓝色平纹布。因其结构简单且布边明显,可通过直接观察、触摸判断各部分裁片布边及各部分缝份情况,因此不难判断幅宽和纱向以及复原排料方案。青黑色土布用于A、B、C、D、E、F、G、H、I、J10片,再加入单独的领子共11片,领子左右两端均为布边,所以领宽即为布幅宽为31cm,在幅宽内共耗费面料约为329cm(如图5);衬里为靛蓝色土布,用于衣身L、M片,袖子K、N片,在幅宽内共耗费面料约为348cm(如图6)。土布厚实耐磨、具有冬暖夏爽,透气吸汗的特点,因此苗族最擅长的就是制作及使用土布。在尽量不破坏织物的前提下,最大限度地挖掘表现材料的自然特性,体现着最朴素而直接的天人合一的自然观,最大程度地利用面料,保持布幅的完整性。我们模拟裁剪的实验排料图,排料模拟实验结果与标本所有裁片边缘是否为布边一一对应,证实了实验的合理性与还原的真实性,根据排料复原实验的结果计算,整件标本共消耗面料约677cm,裁剪面料的使用率却高达100%。实验数据显示面料“整幅使用”是雄衣的主要的设计方法,这种朴素的造物观造就的节俭设计方法,为现代设计提供全新的视角和方法。
二、布幅影响结构的节俭设计
苗族在不断迁徙与战争中服装逐渐定型,当时苗家人制衣水平低下,工具简单,成为简化剪裁的客观需要,服装的布料都是自纺自织自染,通常一匹(6丈长)的面料需要经过几十道工序,往往需要2-3个月。一件交襟左衽衣需要约3.3米布(如图5),还不包括里布,制作一条百褶裙需要十几米布,由于苗族服装面料是传统织布机织造,在有限的幅宽上,服装结构线与最大限度地使用布料的幅宽密不可分。因此服装没有严格的尺寸规定,但同款类型服装的尺寸差异最多3-5cm这是因为布幅在这个差异之间。在“敬物尚俭”的文化中,布幅的整幅使用不仅是决定雄衣结构还影响了结构的细节处理。从雄衣标本结构图的复原情况来看,在裁剪分割时按照整幅布料等比剪裁,在接袖处出现了“四拼一”、“二拼一”的巧妙计算。同样的节俭设计也表现在袖口的处理上,通过主结构与衬里结构的复原,主结构袖片折进2cm,相当于连裁贴边,故整件服装没有袖口缝,这种设计是使袖口既不暴露衬里又能让布幅整幅使用,使面料的使用率高达100%,又让节俭与美观共生。布幅决定结构这种“人以物为尺度”古老而朴素的节俭美学,在雄衣标本中表现得淋漓尽致。
结语
从标本的测绘数据和结构图复原分析,“整幅使用”是雄衣的主要的设计方法。“整幅使用”是基于“人以物为尺度”的原则:服装的结构不以人的大小而设计,而是以布幅的宽窄去“适应”,这种思想与汉民族“天人合一”的“敬物”传统不谋而合,由此形成了中华传统服饰“十字形平面结构系统”一统多元的面貌,且无论是主服还是配饰,都是为了力图节俭而产生的特别的结构形制,基于外华内俭的理念,保持外观的完美,尽可能在不会暴露出的内里节约用料,以平衡节俭与美观的矛盾。这种零消耗裁剪方式的节俭设计,是苗族人民智慧的结晶,是以保持布幅的完整性为前提的“人以物为尺度”的低碳理念,是现代服装裁剪中得以发扬和继承的人文智慧。
参考文献
[1]华思宁.苗族服饰文化内涵探析[J].四川戏剧,2016,(03):101-104.
[2]蔡红燕.苗族服饰的生境考察[J].保山学院学报,2016,(01):47-53.
[3]蔡红燕.苗族服饰族群符号的文化认同研究——以昌宁县两村落苗族服饰为例[J].云南艺术学院学报,2015,(04):81-86.
[4]蔡红燕.苗族服饰的传承现状及生境保护[J].保山学院学报,2015,(06):50-58.
[5]蔡红燕.浅论苗族服饰的美学思想和审美创造——基于昌宁苗族服饰造型艺术和视觉色彩的田野调查[J].云南开放大学学报,2015,(04):32-36+55.
[6]张希.湘西苗族服饰设计中的踏虎凿花艺术[J].包装学报,2015,(03):89-96.
[7]张君.苗族服饰吉祥文化图案研究[J].美术大观,2015,(02):76.
[8]马淑燕,酆蔚.在高级定制中传承民族服饰工艺[J].设计,2015,(03):88-89.
苗族支系众多,是一个只有语言没有文字的民族,古老的服饰银装锦绣,服装的缘饰刺绣精美,记录着氏族和主人一生的信息,他们把精神情感及生活环境在服饰上不断积累扩充,传达着纪念祖先、记录历史、争战功绩、婚姻状况等,形成属于自己支系独特的象征符号,穿在身上犹如一部无字天书,展示了超越文字的史料价值。因此他们恪守“服饰不同不通婚”的习俗。然而,在服装结构上却保持着整齐划一的“千户苗寨交襟装”的传统[1,2]。
在结构上呈交襟左衽,是苗族服饰中最古老和最具代表性的结构,其形制,它从贯首衣演变而来(海南苗族就保持这种形制),是苗族服饰的活化石。此标本来源于贵州凯里私人博物馆传世品,标本地为贵州省凯里市雷山县,根据样本质地、做工和装饰图案等因素鉴定为清代时期女子节日女服。学术界又根据其地理位置、纹样特征、款式类型等因素称该样式为西江式。通过对典型标本结构作系统的研究,发现苗服结构缺少结构实验的数据考证,获其标本研究,成为破解苗族“交襟左衽衣”结构设计方法的关键。因此对标本的主结构、衬里结构和饰边结构进行数据采集、测绘、结构图复原及排料实验并与文献考证进行互证。测量数据和结构图复原显示,“布幅决定结构设计”[4]的敬物理念是苗族“交襟左衽衣”结构的主要设计方法,为后人提供了全新的视角和方法。
一、交襟左衽衣标本测绘与复原
(一)交襟左衽衣主结构测绘与复原
交襟左衽是苗族盛装“雄衣”典型形制,苗语称“欧毕”,意即雄性衣,在结构上男女没有区别,[3,4]主要在重大节日、走亲和婚嫁丧娶时穿着。雄衣穿着时交领左衽侧带系结,主要特点是后衣领低矮而向后坠,类似日本的和服领。雄衣有衬里,衣身整体结构、图案工整,保持左右、前后对称,两边呈四方袖,双襟、衣领、肩部、下摆和开叉均有锦绣缘边,饰有红、绿、黑相间的鸟、花卉、龙、蝴蝶等纹样,采用绉绣、锁绣、辫绣等刺绣工艺(如图1)。
标本面料为自织自染的青黑色平纹布,因尚黑也得名“黑苗”[5,6],这种尚黑的服饰还跟西江的自然环境有关,有利于隐蔽性的狩猎活动。
标本主结构由衣身、袖子和领子3部分组成,被分割成A、B、C、D、E、F、G、H、I、J10片,再加入单独的领子共11片。领子面料与衣身面料一致,领子长31cm,宽7cm,领子两端均为布边故领宽即为布幅宽。衣身前后中破缝,前后身连裁,左右身AB片接缝处均为布边,故各为一个布幅。袖子无肩缝,两个接袖,由C、D、E、F、G、H,6片组成,E、F、G、H为衣身面料,面布的纱向跟衣身的纱向相反,C、D片为单独绣片,左右接袖的4块面布E、F、G、H相加也是一个布幅。左右袖口I、J片均为半个幅宽。测量数据和结构图复原显示标本结构分割设计都与布料的幅宽密不可分,是交襟左衽衣“零消耗”结构设计的直接实物证据(如表1、图2)。
表1雄衣标本主结构测量数据

图1雄衣标本与外观图(私人收藏)

图2雄衣标本结构

图4 雄衣标本饰边分局的复原
(二)衬里结构测绘与复原
标本衬里面料为自织自染的靛蓝色平纹布,衬里为两种颜色面料,I、J片和主面料一致为青黑色,I、J与袖片连裁,折进2cm,相当连裁贴边,故整件服装没有袖口缝,这种设计的考虑是使袖口尽可能不暴露衬里,从而达到节俭与美观的统一。衬里L、M、K、N四个部分为靛蓝布呈四个布幅。从衬里结构测绘与复原情况看,完全与主结构保持一致,且衣身L、M片与接袖K、N片宽度相等约为31cm。可见衬里是用了四个布幅完成的结构设计。复原排料图与主结构相同亦呈现“零消耗”(如图3)。

图3雄衣标本衬里结构
(三)饰边结构测绘与复原
“雄衣”的人文信息主要表现在饰边图案中。自远古至明清,苗族氏族部落基本上都在战争与不断迁徙中度过,为了显示和保持不屈的精神,成为记录战绩和部族历史的徽帜,战服慢慢演变成雄衣,至今保持着氏族成员诸多战服的痕迹。饰边的分布也依据“布幅决定结构形态”的思想进行设计。
作为盛装雄衣的饰边并非装饰,它主要有两种功用,一是表达氏族的图腾标志;一是保护和延长服装寿命的作用,亦继承着节俭的传统意识。因此,饰边主要分布在肩部、袖口、开衩、下摆、衣领等处,这些地方往往比较容易磨损,他们借助刺绣装饰把服装进一步加固,磨损不能使用时还可以更换,提升服装的使用价值及储藏时间,从饰边的基布测绘数据看它们也保持着单位布幅的分割(如表2)。绣片的绣法主要采用绉绣和辫绣[7],即用编好的线堆叠、缠绕在基布上,其效果浑厚粗犷、沉重结实,如同浮雕一般。袖口和饰边刺绣都是没有破缝的,在未制成成衣的状态下,饰边与服装都是单独制作的,采用先绣后缝的方法,在缝制服装前,所有的绣片均已绣磬。这样无论是衣片还是饰边出现损坏,将它们拆洗后重新用到完好的雄衣上。因此,形成苗族服饰重工艺轻裁剪的特点,一件衣服制作的时间大部分用在绣片上。在裁剪上并不需要花费太多的时间而必须节省。基于“物尽其用”的考虑,最有效的设计方法就是依据布幅自然形成服装的结构,结构决定着饰边的布局[8]。饰边同衣身结构一样保持着左右对称,唯一区别在于前身右开衩缺一饰边,这是因为穿着时为左衽交领,被衣襟遮住而省略(如图4)。
(四)标本面料排料实验
在雄衣排料实验中发现,交襟左衽衣属于有织有缝的“缝合型”。布幅决定结构设计主要采用“规格化”和“整幅使用”方法。“规格化”采用规则的矩形,常常两两相对,可以任意调换而不影响缝制,这种基于节俭的“规格化”设计方法为它们的反复使用、延长寿命提供了条件。一件完整的雄衣仅由4至6片布构成,制作的过程中不产生任何的边角布料,真正达到裁剪零消耗。分割时也按照整幅布料等比剪裁,如衣身两幅,接袖4块面布就是一幅宽,不管纱线的方向;袖口各为半个幅宽,这就出现了“四拼一”“二拼一”的巧妙计算。它充分体现着最朴素而直接的天人合一的自然观,所有结构均因节俭和物质崇拜而催生,这种设计是以人适应面料的幅宽和依据面料的自然特性进行经营而布局。

表2雄衣标本饰边结构测量数据

图5青黑色土布排料图

图6靛蓝色土布排料图
整件标本共有2种面料,青黑色平纹布及靛蓝色平纹布。因其结构简单且布边明显,可通过直接观察、触摸判断各部分裁片布边及各部分缝份情况,因此不难判断幅宽和纱向以及复原排料方案。青黑色土布用于A、B、C、D、E、F、G、H、I、J10片,再加入单独的领子共11片,领子左右两端均为布边,所以领宽即为布幅宽为31cm,在幅宽内共耗费面料约为329cm(如图5);衬里为靛蓝色土布,用于衣身L、M片,袖子K、N片,在幅宽内共耗费面料约为348cm(如图6)。土布厚实耐磨、具有冬暖夏爽,透气吸汗的特点,因此苗族最擅长的就是制作及使用土布。在尽量不破坏织物的前提下,最大限度地挖掘表现材料的自然特性,体现着最朴素而直接的天人合一的自然观,最大程度地利用面料,保持布幅的完整性。我们模拟裁剪的实验排料图,排料模拟实验结果与标本所有裁片边缘是否为布边一一对应,证实了实验的合理性与还原的真实性,根据排料复原实验的结果计算,整件标本共消耗面料约677cm,裁剪面料的使用率却高达100%。实验数据显示面料“整幅使用”是雄衣的主要的设计方法,这种朴素的造物观造就的节俭设计方法,为现代设计提供全新的视角和方法。
二、布幅影响结构的节俭设计
苗族在不断迁徙与战争中服装逐渐定型,当时苗家人制衣水平低下,工具简单,成为简化剪裁的客观需要,服装的布料都是自纺自织自染,通常一匹(6丈长)的面料需要经过几十道工序,往往需要2-3个月。一件交襟左衽衣需要约3.3米布(如图5),还不包括里布,制作一条百褶裙需要十几米布,由于苗族服装面料是传统织布机织造,在有限的幅宽上,服装结构线与最大限度地使用布料的幅宽密不可分。因此服装没有严格的尺寸规定,但同款类型服装的尺寸差异最多3-5cm这是因为布幅在这个差异之间。在“敬物尚俭”的文化中,布幅的整幅使用不仅是决定雄衣结构还影响了结构的细节处理。从雄衣标本结构图的复原情况来看,在裁剪分割时按照整幅布料等比剪裁,在接袖处出现了“四拼一”、“二拼一”的巧妙计算。同样的节俭设计也表现在袖口的处理上,通过主结构与衬里结构的复原,主结构袖片折进2cm,相当于连裁贴边,故整件服装没有袖口缝,这种设计是使袖口既不暴露衬里又能让布幅整幅使用,使面料的使用率高达100%,又让节俭与美观共生。布幅决定结构这种“人以物为尺度”古老而朴素的节俭美学,在雄衣标本中表现得淋漓尽致。
结语
从标本的测绘数据和结构图复原分析,“整幅使用”是雄衣的主要的设计方法。“整幅使用”是基于“人以物为尺度”的原则:服装的结构不以人的大小而设计,而是以布幅的宽窄去“适应”,这种思想与汉民族“天人合一”的“敬物”传统不谋而合,由此形成了中华传统服饰“十字形平面结构系统”一统多元的面貌,且无论是主服还是配饰,都是为了力图节俭而产生的特别的结构形制,基于外华内俭的理念,保持外观的完美,尽可能在不会暴露出的内里节约用料,以平衡节俭与美观的矛盾。这种零消耗裁剪方式的节俭设计,是苗族人民智慧的结晶,是以保持布幅的完整性为前提的“人以物为尺度”的低碳理念,是现代服装裁剪中得以发扬和继承的人文智慧。
参考文献
[1]华思宁.苗族服饰文化内涵探析[J].四川戏剧,2016,(03):101-104.
[2]蔡红燕.苗族服饰的生境考察[J].保山学院学报,2016,(01):47-53.
[3]蔡红燕.苗族服饰族群符号的文化认同研究——以昌宁县两村落苗族服饰为例[J].云南艺术学院学报,2015,(04):81-86.
[4]蔡红燕.苗族服饰的传承现状及生境保护[J].保山学院学报,2015,(06):50-58.
[5]蔡红燕.浅论苗族服饰的美学思想和审美创造——基于昌宁苗族服饰造型艺术和视觉色彩的田野调查[J].云南开放大学学报,2015,(04):32-36+55.
[6]张希.湘西苗族服饰设计中的踏虎凿花艺术[J].包装学报,2015,(03):89-96.
[7]张君.苗族服饰吉祥文化图案研究[J].美术大观,2015,(02):76.
[8]马淑燕,酆蔚.在高级定制中传承民族服饰工艺[J].设计,2015,(03):88-89.
展开全文
APP阅读
声明:本文仅代表作者本人观点,汉同文系信息发布平台,仅提供信息存储空间服务。[投诉]
特色专题
民俗文化
点读中华
热门资讯
更多 >
威信苗族服饰特色及其教学应用
少数民族服饰
湘西苗族服饰图案设计的启示与应用探讨
少数民族服饰
文山苗族传统纹样在陶艺产品设计中的运用初探
少数民族服饰
贵州苗族服饰图案的母题探索
少数民族服饰
苗族“斜襟左衽衣”结构复原与评价
少数民族服饰
黔东南苗族百鸟衣服饰艺术
少数民族服饰
苗族服饰生成技艺研究:以融水杆洞乡为例
少数民族服饰
王卡苗族服饰文化
少数民族服饰
苗族刺绣纹样的媒介分析及题材分类
少数民族服饰
苗族服饰的生境考察
少数民族服饰
贵州剑河苗族锡绣艺术及其文化符号探究
少数民族服饰
苗族服饰中装饰纹样的艺术表达与价值体现
少数民族服饰
苗族服饰文化内涵研究——评《红河苗族服饰文化》
少数民族服饰
湘西苗族文化中的汉文化情结——以服饰文化为例
少数民族服饰
苗族传统刺绣在现代成衣设计中的运用研究
少数民族服饰
几何视角下的苗族贯首衣结构研究——以“青山式”苗装为例
少数民族服饰
巴楚巫文化影响下的湘西苗族女装探析
少数民族服饰
苗族蝴蝶元素在原创服饰设计中的运用
少数民族服饰
基于巴楚巫文化的湘西苗族服饰纹样研究
少数民族服饰
广西少数民族服装结构在现代服装设计中的应用研究——以苗族为例
少数民族服饰
查看更多...




















